www.atam.lu/placeholder-project
Streamline 4
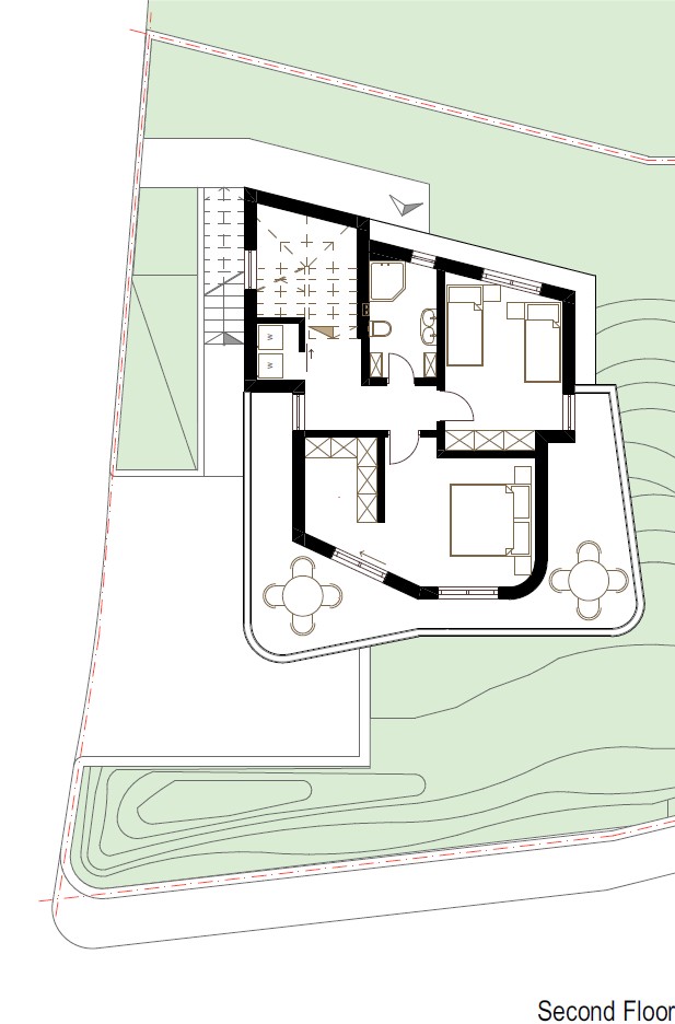
Located in the riverside town of Grevenmacher, Luxembourg, this contemporary residence comprises two distinct dwelling units organized across four levels, including a basement, ground floor, and two upper storeys. The architecture departs from the traditional block form, utilizing a sculptural, tiered massing characterized by soft, rounded corners and deep architectural recesses that create a dynamic interplay of light and shadow.The building’s vertical program is articulated through a series of staggered terraces and cantilevered balconies, which provide private outdoor pockets for each unit while maintaining a unified aesthetic. A clean, white monochromatic render is punctuated by minimalist black metal detailing along the slab edges, emphasizing the fluid, wraparound geometry of the facade. The ground level is cleverly integrated into the site's topography, featuring a recessed subterranean garage and a primary entrance that maintains a low-profile street presence.Floor-to-ceiling glazing and transparent glass balustrades ensure that the interior living spaces are flooded with natural light, offering expansive views of the Grevenmacher landscape. This design successfully balances high-density living with the privacy and formal elegance of a standalone sculptural villa.






