www.atam.lu/placeholder-project
Shoura: The Assembly Offices
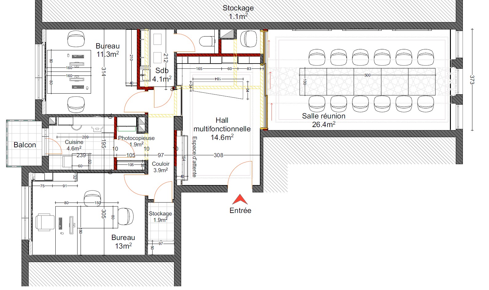
The Shoura serves as the officially recognized religious council representing the Muslim community in Luxembourg, acting as the primary interlocutor between the community and the State. This project involves the strategic conversion of an existing residential apartment into high-functioning office spaces tailored to the Assembly’s administrative and representative needs. The interior architectural language is executed in a contemporary Islamic decorative manner, characterized by the integration of intricate geometric fretwork, islamic patterns, and a warm palette of natural timber and marble that harmonizes traditional motifs with a professional, modern workplace aesthetic. The aim of the project was to create a multi-functional yet representative office space, designed with flexibility and future adaptability in mind. This approach informed both the spatial organization and the development of bespoke interior elements. Each piece of furniture was individually designed as part of the overall concept, ensuring coherence in form, materiality, and function. The design and fabrication process was closely overseen by the architects, resulting in a refined and carefully executed interior. The Shoura office reflects our commitment to addressing diverse programmatic needs—balancing contemporary workplace requirements with cultural and religious considerations, and creating a space that is both functional and contextually responsive.that is both practical and meaningful. Through this approach, the project establishes a balanced dialogue between modern spatial needs and contextual sensitivity.






