www.atam.lu/placeholder-project
Aspelt Barn House
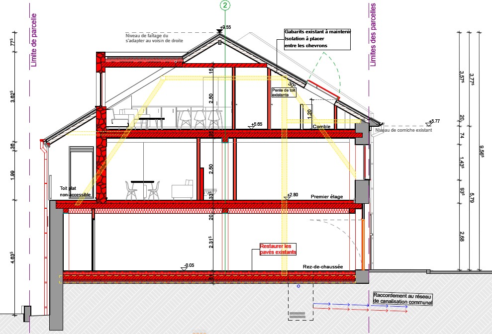
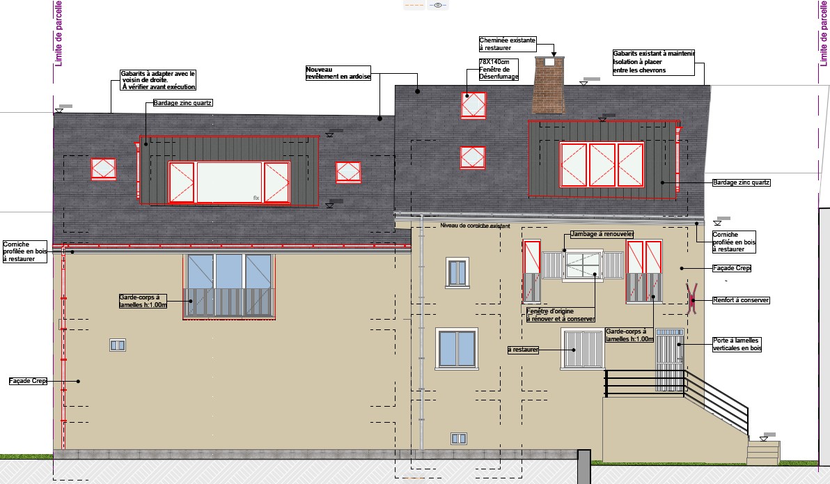
This adaptive reuse project in Aspelt represents a sophisticated transformation of a traditional rural barn into a contemporary four-unit residential complex, balancing historical "patrimoine" with modern living standards. The architectural approach is centered on a "restorative" philosophy that preserves the building's monolithic rural character while introducing high-performance modern interventions. On the street-facing facade, the original sand-colored lime-wash crépi and restored stone window surrounds maintain the structure's rhythmic, historical presence. This is further anchored by the preservation of traditional timber shutters and the reimagining of the original barn "carriage entrance" into a large-scale wooden gate with glazed transoms, which serves as a primary architectural focal point signaling the transition from an agricultural past to a residential future.The internal organization of the four units strategically leverages the massive volume of the original barn, particularly within the roof structure. By utilizing a 30° pitch and integrating high-performance insulation between the rafters, the design creates dynamic, mezzanine-style living spaces that reach a ridge height of $+9.55m$. While the street side remains grounded in tradition with a new slate roof and rhythmic skylights, the rear facade adopts a more "extroverted" contemporary language. Here, the introduction of "Zinc Quartz" clad dormers, large-format glazing, and sleek vertical metal balustrades provides a sharp material contrast to the traditional plaster, ensuring each apartment benefits from ample natural light and a direct connection to the outdoors. Ultimately, the project succeeds by treating the original masonry as a protective shell for a series of high-volume, modern interiors that respect the existing urban grain and heritage of the site.









